Timber Construction Systems
Today it is technically possible to design tall, complex structures in wood. The limits of what you can do have been pushed forward, even in residential developments. This progress – plus regulatory changes – is creating new ways for architects to use wood in inspired and innovative constructions.
In Sweden, there is a long and proud tradition of building one- and two storey buildings in wood. However, the last years have seen a development toward taller wooden buildings. Driven by building codes recognizing wood’s safety and performance capabilities and the value they provide, things are starting to change. With innovative technologies such as CLT, wood buildings are now propelling to even greater heights.
There are many Swedish companies with a vast experience of wood, passed down by generations, which allows them to handle any project with great skill. Their wooden construction systems have differences, but also many things in common. Several include traditional stud walls, they have thick floor structures between the apartments and in some cases they are subject to the limitations of the timber when it comes to free spans. The installation solutions in floors and shafts are pre-prepared, while sound and fire proofing insulation between the apartments is taken care of horizontally and vertically.
The advantage of buildings using CLT and post and beam systems is that they offer greater flexibility regarding room layouts and uninterrupted spans. There are also benefits when it comes to impact sound insulation. Some designs incorporate a cast concrete slab of 50 millimeters or more, which allows the total thickness of the floor structure to be cut by around 100 millimeters – while retaining the same impact sound insulation. The thickness of the floor structure affects not only the overall height, but also the design of the façade and the building’s integration with the surrounding built environment.
The environmental characteristics of wood are wellknown – but it has also a wide range of functional properties. It provides thermal insulation, resists wind and weather, stands up to traction and compression forces and is easy to handle and shape. Wood is also easy to alter and process, paint and surface treat, plus it has a finished surface ready for treatment right after being sawn and planed. The work put into the surface through care and maintenance is reflected over the whole lifetime of the building. Weather, erosion from the sun’s rays, grain, texture and patina are in some ways a wooden building’s best friends – they help giving a wooden façade character and beauty over a very long time.
Construction of buildings is often compared to the industrial manufacturing of cars. In both fields, competition is tough to say the least, and survival in the market depends on renewing and adapting the product to the end customer. A failed product is a great threat even to the biggest company. However, a successful one has a value in its own right that makes the owner happy. The production of a house and a car might have some similarities. But in contrast to a car, an attractive building can make more than the owner and the users happy. Combined with a sustainable and energy-efficient construction it also helps raising the value and status of a whole neighborhood or district.

Derome can offer buildings of up to 6–7 storeys using surface units, with great scope for interesting floor plans. They build all the wooden frames industrially and transport the units to the construction site for quick and efficient assembly. The surface units comprise a wooden structural frame with insulation and a surface layer. The façade material can be adapted to the location. Derome will shortly be launching a new product in the form of modules for up to 4 storeys.

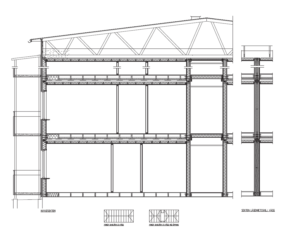
Martinsons uses cross laminated timber (CLT) in the floor and stabilising walls, and sometimes uses the post and beam system. The inside of the external walls is CLT, onto which insulation and the exterior façade are fitted. The floor structure comprises a CLT panel that is bonded to glulam beams with an underlying flanged beam in glulam, plus insulation. Separated from the top of the floor structure is a frame of 220 millimetre wooden beams that supports the ceiling below. Insulation is inserted between the beams. The thickness of the floor structure is around 0.5 metres. The CLT units are 12 metres long and 1.2 metres wide. The floor units rest on the CLT wall units. The maximum window width is 2 metres without reinforcement. The openings in the façade should be spread symmetrically along the vertical axis so that the outer walls can provide sufficient stability.

Moelven Töreboda applies a post and beam approach for its in-house system, designated Trä8. This comprises glulam posts and beams, a stabilising system of glulam and LVL (Laminated Veneer Lumber) panels, plus floors and ceilings that use LVL beams and panels. Stability is ensured by box beam units made from glulam and LVL, filled with mineral wool insulation. The floor units are constructed from LVL panels with most of the veneer layers running lengthways and a small number running at 90 degrees. The panels are laid on LVL beams whose fibres run along their length. The exterior can be finished with curtain walls that are fitted outside or between the post and beam carcass. The structural design allows great freedom when it comes to window placement.

Lindbäcks Bygg uses wooden box units with an internal ceiling height of 2.5 metres and dimensions of max 3.9 x 8.4 metres. The maximum width is determined by road transport restrictions. The outer walls of the modules are load-bearing, with the ceiling and floor suspended from the walls. The modules are designed so that a room can be made up of two or more modules. One module can also contain two or more smaller rooms, such as a bathroom, corridor or wardrobe. If a module wall is less than 4.4 metres, openings are compensated for with glulam beams, and if a wall is wider steel joists are used. The walls in the modules are stud walls. This means that openings in façades and load-bearing walls should be positioned symmetrically along the vertical axis for stability reasons, which can limit the window options. On the other hand, it is an example of traditional façade design in wooden buildings.